(Última actualización: 29/11/2021)
Introducción
Las rejillas, junto con los niveles, son otro de los elementos importantes de referencia que tiene REVIT. Comparten determinadas propiedades, aunque tiene sus propias características.
Las rejillas son planos representados por una línea y que son perpendiculares u ortogonales a la vista en la que se crearon. A diferencia de los niveles, las rejillas se pueden crear en cualquier vista, ya sea esta de sección, alzado o planta y pueden ser horizontales o inclinadas, incluso pueden ser líneas multisegmento y arcos.
![]() |
| Ejemplos de Rejilla. Fuente: Elaboración propia |
Uso de las rejillas
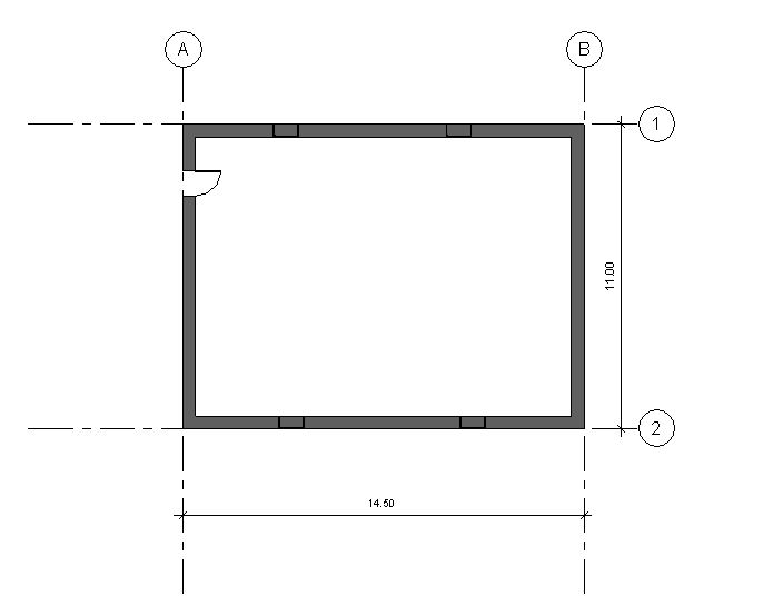
![]() |
| Uso de rejillas para elementos de arquitectura. Fuente: Elaboración propia |
![]() |
| Uso de rejillas para elementos estructurales. Fuente: Elaboración propia |
Partes de una rejilla
Las rejillas constan de las siguientes partes:
![]() |
| Partes de una rejilla. Fuente: Elaboración propia |
- Etiqueta correspondiente al parámetro del NOMBRE de la rejilla.
- Símbolo de cabeza de rejillas. Es la representación que elegimos para el extremo de nuestra rejilla. Es
una familia anidada dentro de la familia anfitrión de la rejilla. Es en esta familia donde se incluye el parámetro de nombre. - Línea de representación de rejilla. Su patrón se puede modificar en los parámetros de tipo.
- Candado de anclado. Cuando está cerrado, existe un alineación en la disposición de diferentes rejillas entre sí. Si arrastro la cabeza de una rejilla, arrastro con ella al resto de cabezas. Si, por el contrario, el candado está abierto, me permite arrastrar la cabeza sólo de esa rejilla sin afectar al resto de niveles.
- Extensión. Cuando aparece el símbolo de 3D quiere decir que cualquier modificación que yo realice en la posición de la cabeza o extremo de la rejilla será visible en el resto de vistas. Si cambio a 2D, la modificación de los
extremos de la rejilla serán solo visibles en la vista en la que esté. - Check o comprobación de visibilidad. Nos permite activar o no la visibilidad de los símbolos en los dos extremos de la rejilla.
Visibilidad de las rejillas
Como norma general, las rejillas son visibles en todas las vistas, salvo las vistas 3d. Para la gestión de visibilidad de las rejillas, hay que tener en cuenta los siguientes aspectos:
- Las rejillas son solo visibles en vistas ortogonales al plano que las define.
- Las rejillas nunca serán visibles en vistas paralelas o no ortogonales al plano que las define.
- Las rejillas son visibles en planos de planta siempre y cuando el plano que las define se corte con el plano de corte definido en el rango de vista del plano de planta (ver esquema)
![]() |
| Rejilla NO VISIBLE en la vista de plano de planta LEVEL 1. Fuente: Elaboración propia |
![]() |
| Rejilla VISIBLE en la vista de plano de planta LEVEL 1. Fuente: Elaboración propia |
Tipos de rejillas
![]() |
| Parámetros de ejemplar de rejillas. Fuente: Elaboración propia |
![]() |
| Parámetros de tipo de rejillas. Fuente: Elaboración propia |









Excelente aporte